Архитектурная Студия 101 Линия / 101LINE разрабатывает как индивидуальные проекты домов, бассейнов, зон отдыха. Так и предлагает готовые проекты для строительства малоэтажных домов, ландшафтного дизайна и благоустройства приусадебных участков в частном секторе и садовых товариществах.
Мы разрабатываем полностью готовые к реализации проекты для частного использования.
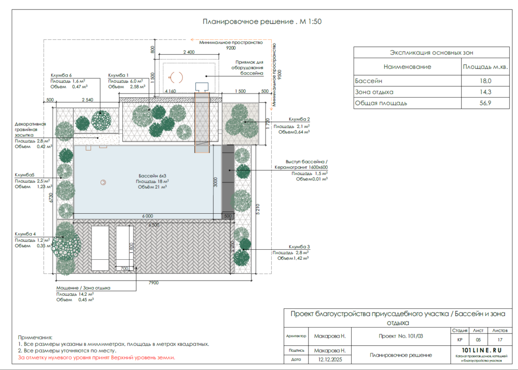
Пример содержания проекта благоустройства:
01 / Титульный лист
02 / Ведомость чертежей
03 / Визуализация. Лист 1
04 / Визуализация. Лист 2
05 / Планировочное решение
06 / План ведения работ
07 / Строительный план / Фундаменты и Основания
08 / Строительный план / Бассейн
09 / Строительный план / Стена
10 / Строительный план / Устройство клумбы 1
11 / Монтажный план / Мощение и отделка декоративной стены
12 / Монтажный план / Отделка декоративной стены и Клумбы 1
13 / Монтажный план / Бордюры и устройство клумб
14 / Дендроплан / План посадки растений
15 / Указания по содержанию и уходу
16 / Спецификация строительных и отделочных материалов
17 / Ведомость растений


